tuin
huis
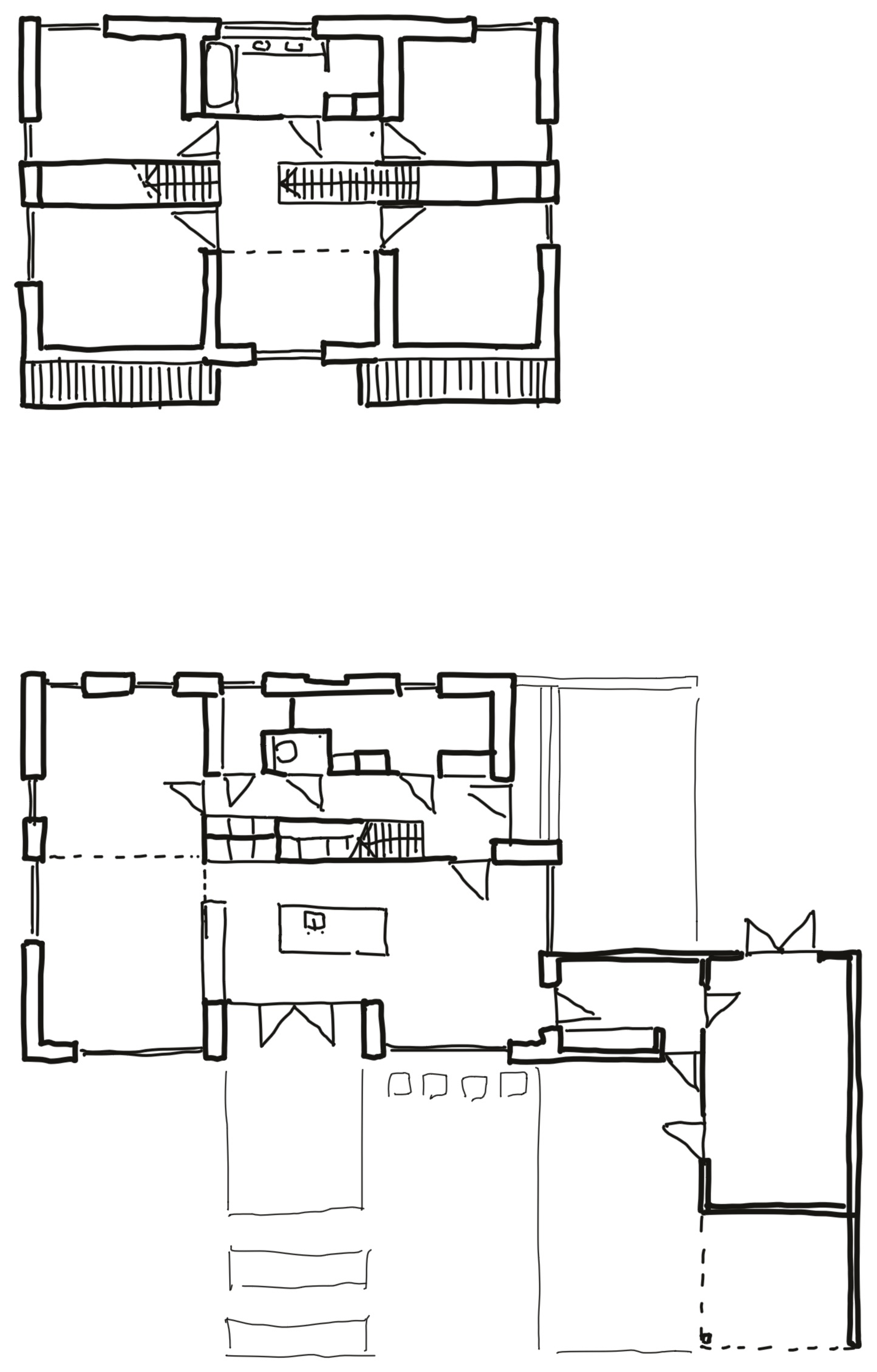
Villa VD
Gezinswoning in het buurtschap Lievingerveld.
Lievingerveld , 2020De keuken staat centraal, waarbij alle ruimtes verbinding hebben met de tuin en het Drentse landschap. De trap vormt een centrale as door het huis, vanaf de entree naar de zolder.
Uitwerking door Buro Smit – Beilen


Door de plaatsing van de schuur en berging aan de zijkant te ontstaat er veel privacy en verschillende plekken in de tuin.


De trap loopt in de langsrichting mee naar het licht boven in de kap.


Het ontwerp bestaat uit eenvoudige houten volumes bestaat op een gemetselde plint.