stoere
haven
Boegkwartier
78 appartementen, supermarkt, horeca en daktuin
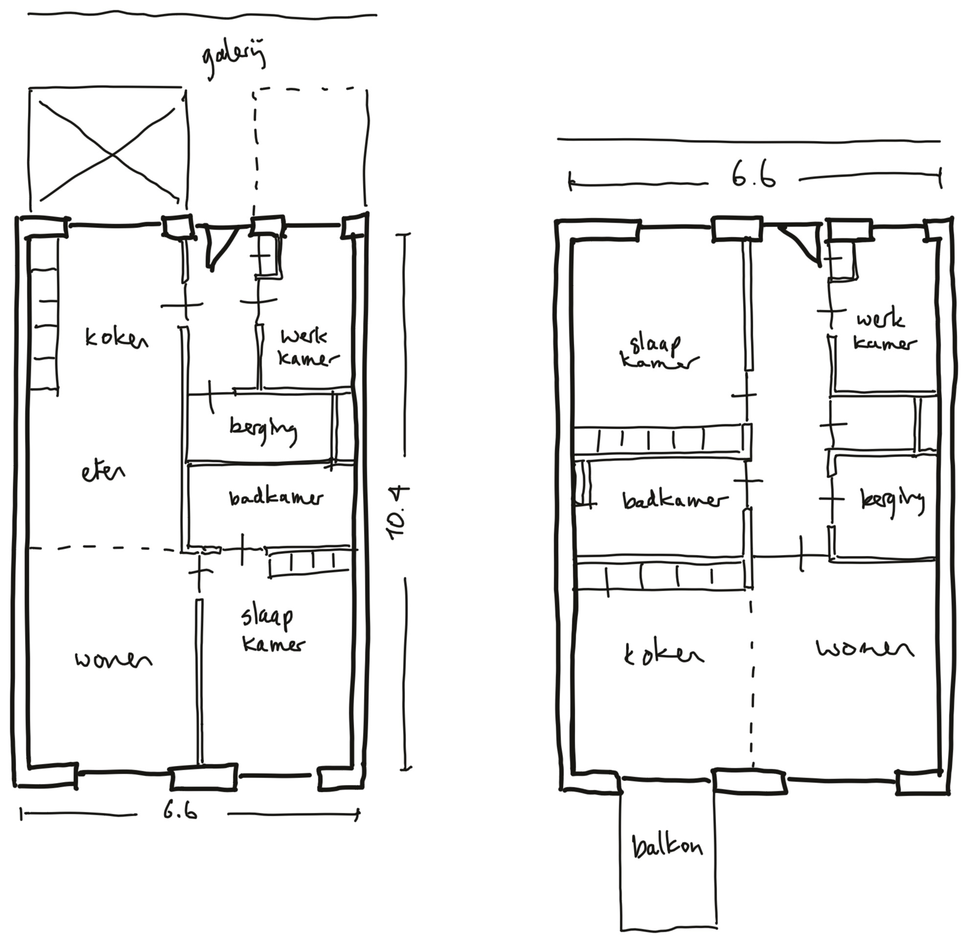
Delfzijl , 2021 – 2024De 78 nieuwe aardbevingsbestendige woningen zijn verweven met bestaande gebouwen in het centrum van Delfzijl. Midden in het blok is een grote supermarkt met daarboven een collectieve daktuin voor alle woningen.
De robuuste architectuur bestaat uit een strak grid dat alle volumes samenbind met één kleur baksteen.
Vanaf de tweede verdieping hebben de woningen uitzicht over de haven en het wad.
Ontworpen bij De Zwarte Hond






In het project zitten twee basisplattegronden voor de 78 sociale huurwoningen van Acantus.